Invisible

Local comercial en plaza de una planta en Metepec

Purísima, Metepec, Estado De México, México

Publicado: 26-03-2025

Renta: $400
Renta

Detalle


Descripción

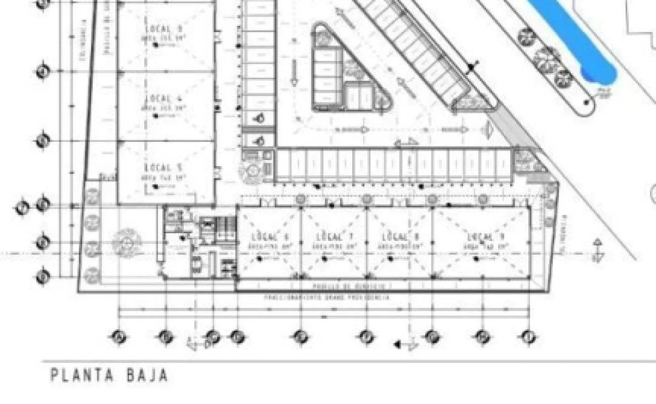
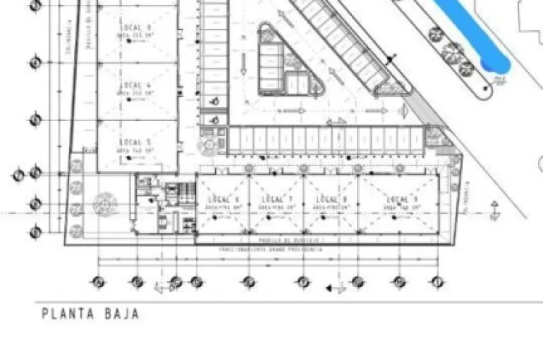
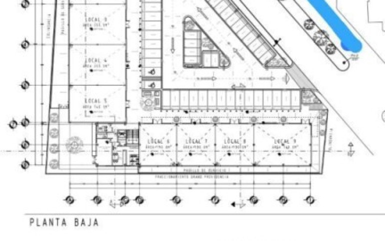
Plaza de una planta con locales,estaciinamiento y vigilancia.
Se entrga en obra negra.


Encuentra el sitio que amarás para quedarte