Invisible

Edificio en Lomas Virreyes con uso de suelo Amplio

Montes Urales Lomas de Virreyes,11000, Miguel Hidalgo, Ciudad de México

Publicado: 12-01-2026

Venta: $72,000,000

Venta

Detalle

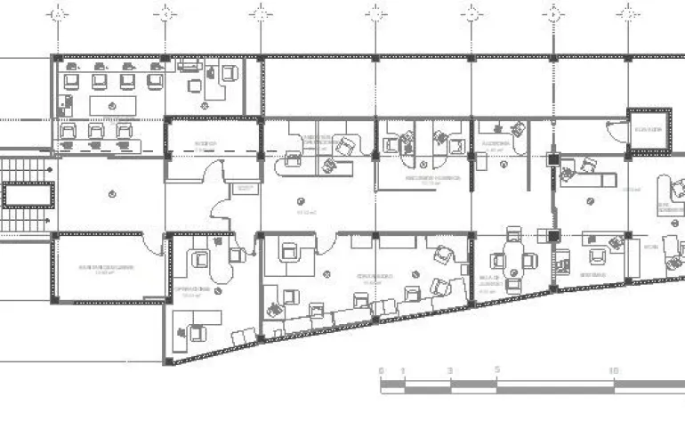
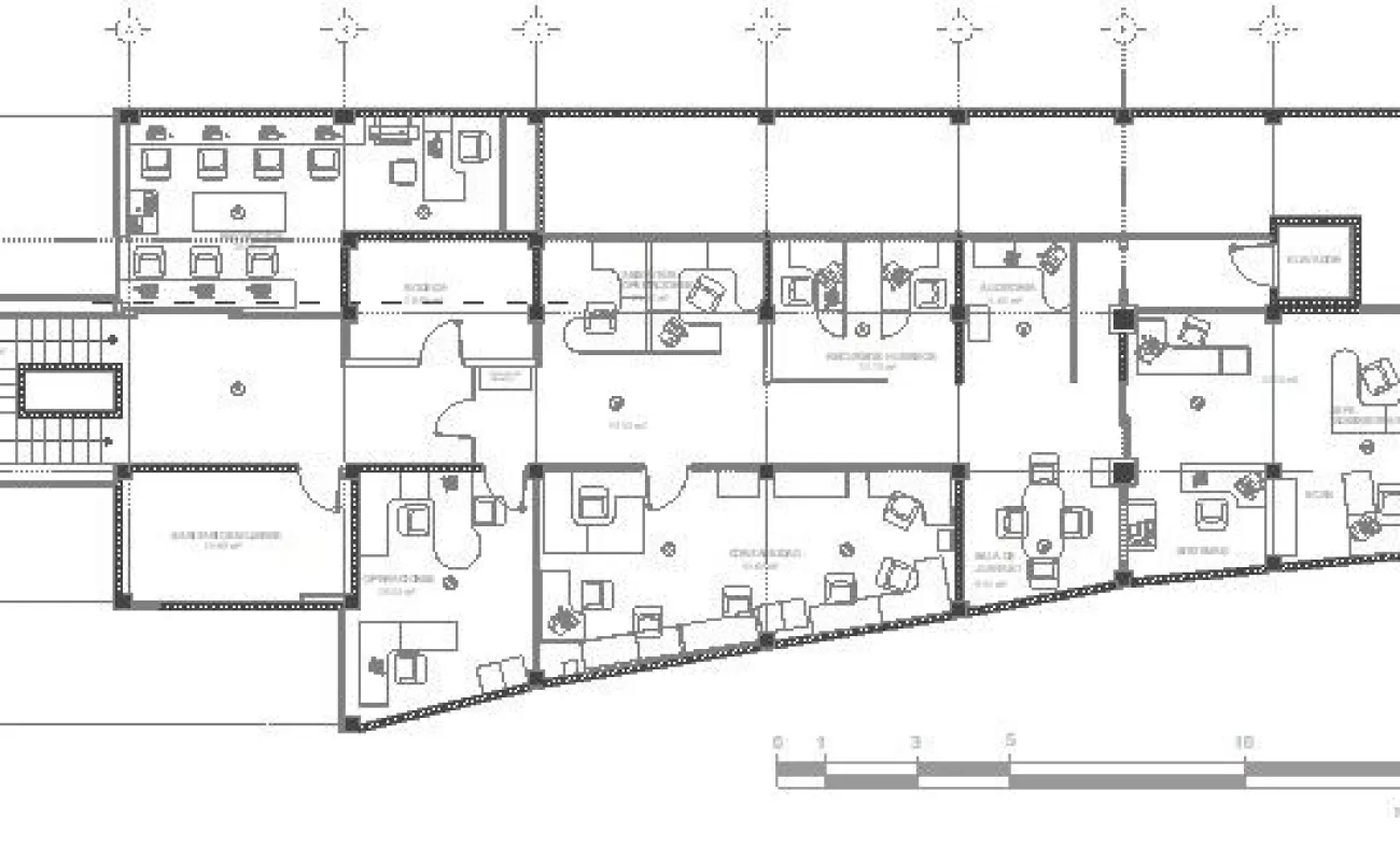
  • Superficie construida:

    756.00 m²
  • Superficie de terreno:

    467.00 m²
  • Clave CRM:

    EB-UT8387
  • Estacionamiento:

    5.00

Descripción

💎 Oportunidad Premium de Inversión en Lomas Virreyes 💎Ubicación Inmejorable, Potencial Ilimitado Se pone a la venta un distinguido edificio con uso de suelo amplio en la codiciada zona de Lomas Virreyes, una de las colonias más prestigiosas y con mayor plusvalía de la Ciudad de México.
Esta propiedad representa una inversión estratégica debido a su ubicación privilegiada y su excepcional flexibilidad de desarrollo.✨ Características Destacadas Uso de Suelo Extensivo (Habitacional, Oficinas, Comercial, bancos, consultorios etc.): Esta es la característica más valiosa.

Permite al inversionista o desarrollador maximizar el rendimiento al adaptar el espacio a las demandas del mercado más rentables (residencial de lujo, corporativos, boutiques de alto nivel, etc.).

La normatividad permite la construcción de hasta 6 niveles, ofreciendo un gran potencial para incrementar significativamente los metros cuadrados de construcción y, por ende, el valor de reventa o renta.

Adquiera un activo que puede ser renovado para obtener rentas premium (oficinas corporativas o viviendas de lujo) o demolido/reconstruido para maximizar la densidad y el retorno de la inversión (Return on Investment - ROI).

Situado en una zona de alta demanda y excelente conectividad, garantizando una ocupación y valoración constantes.

La escasez de terrenos con este tipo de uso de suelo y potencial de altura en Lomas Virreyes asegura que el valor del activo se aprecie de manera sostenida.

¡Esta propiedad no es solo un edificio, es una licencia para construir riqueza en una de las mejores ubicaciones de la ciudad!


Encuentra el sitio que amarás para quedarte